PZ73H手動刀型閘閥
- 銷售:021-32051999
- 銷售:021-32050777
- 傳真:021-66099555
詳情介紹
- 產品介紹
- 服務承諾
- 訂貨流程
PZ73H手動刀閘閥采用對夾連接采用刀型閘板結構,也叫做刀型閘閥。安裝距離短、重量輕適合長纖維、顆粒性介質。這種耐磨刀閘閥廣泛應用于各種工業領域,特別是采礦、鋼鐵工業--用于煤炭、濾渣漿,凈化裝置--用于廢水、泥漿、污物及帶有懸浮物的澄清水,造紙工業--用于任何濃度紙漿、料水混合物,電站除灰--用于灰渣漿液等專業管道系統。
產品特點
1、結構簡單、造型美觀、全通徑流道、流阻系數小。閘板提升時,同時將密封面上的粘物給刮除,自動清理了雜物;
2、不銹鋼閘板可防止腐蝕引起的密封泄漏。整體不銹鋼材質,防止了腐蝕破壞,使用壽命長;
3、可選用各種配管法蘭標準及法蘭密封面型式,還可選用手動、蝸輪傳動、電動、氣動、液動等各種驅動方式,滿足用戶不同需求。
執行標準
設計規范:GB/12234 DIN3356
法蘭連接:ANSI Bl6.5 GB/T9113 JB/T79 DIN 2543-2545
試驗與檢驗:GB/T 13927 DIN3230 API598
性能參數
基本型號 | PZ73H | PZ73Y | PZ73F | |
工作壓力(MPa) | 1.6~2.5 Calss150 | |||
口徑(mm) | DN50-DN2000 2″-80″ | |||
適用介質 | 水、油、氣、醋酸類、硝酸類等其他介質 | |||
可選材料 | 閥體 | WCB CF8 CF8M CF3 CF3M | ||
閘板 | WCB CF8 CF8M CF3 CF3M | |||
閥桿 | WCB CF8 CF8M CF3 CF3M | |||
密封面 | 不銹鋼 司太立合金 碳化鎢 PTFE | |||
填料 | 柔性石墨 PTFE | |||

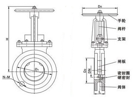
主要外形尺寸
MPa | DN | L | D | D1 | D2 | H | N-M | D0 | W(Kg) |
1.0 | 50 | 43 | 160 | 125 | 100 | 285 | 4-M16 | 180 | 8 |
65 | 46 | 180 | 145 | 120 | 298 | 4-M16 | 180 | 10 | |
80 | 46 | 195 | 160 | 135 | 315 | 4-M16 | 220 | 12 | |
100 | 52 | 215 | 180 | 155 | 365 | 8-M16 | 220 | 14 | |
125 | 56 | 245 | 210 | 185 | 400 | 8-M16 | 230 | 22 | |
150 | 56 | 280 | 240 | 210 | 475 | 8-M20 | 280 | 29 | |
200 | 60 | 335 | 295 | 265 | 540 | 8-M20 | 360 | 38 | |
250 | 68 | 390 | 350 | 320 | 630 | 12-M20 | 360 | 66 | |
300 | 78 | 440 | 400 | 368 | 780 | 12-M20 | 400 | 100 | |
350 | 78 | 500 | 460 | 428 | 885 | 16-M20 | 400 | 119 | |
400 | 102 | 565 | 515 | 482 | 990 | 16-M22 | 400 | 195 | |
450 | 114 | 615 | 565 | 532 | 1100 | 20-M22 | 530 | 285 | |
500 | 127 | 670 | 620 | 585 | 1200 | 20-M22 | 530 | 389 | |
600 | 154 | 780 | 725 | 685 | 1450 | 20-M27 | 600 | 529 | |
700 | 165 | 895 | 840 | 800 | 1700 | 24-M27 | 600 | 790 | |
800 | 190 | 1010 | 950 | 898 | 2000 | 24-M30 | 680 | 850 | |
900 | 203 | 1110 | 1050 | 1005 | 2300 | 28-M30 | 680 | 900 | |
1000 | 216 | 1220 | 1160 | 1115 | 2500 | 28-M30 | 700 | 1050 | |
1200 | 254 | 1450 | 1380 | 1325 | 2800 | 32-M36 | 800 | 1300 | |
1.6 | 50 | 43 | 160 | 125 | 99 | 285 | 4-M16 | 180 | 8.5 |
65 | 46 | 185 | 145 | 120 | 295 | 4-M16 | 180 | 10.7 | |
80 | 46 | 200 | 160 | 135 | 315 | 8-M16 | 220 | 13 | |
100 | 52 | 220 | 180 | 155 | 365 | 8-M16 | 220 | 15 | |
125 | 56 | 250 | 210 | 185 | 400 | 8-M16 | 230 | 23.5 | |
150 | 56 | 285 | 240 | 210 | 475 | 8-M20 | 280 | 31 | |
200 | 60 | 340 | 295 | 265 | 540 | 12-M20 | 360 | 40.7 | |
250 | 68 | 405 | 355 | 310 | 630 | 12-M22 | 360 | 70 | |
300 | 78 | 460 | 410 | 375 | 780 | 12-M22 | 400 | 107 | |
350 | 78 | 520 | 470 | 435 | 885 | 16-M22 | 400 | 129 | |
400 | 102 | 580 | 525 | 485 | 990 | 16-M27 | 400 | 215 | |
450 | 114 | 640 | 585 | 545 | 1100 | 20-M27 | 530 | 305 | |
500 | 127 | 715 | 650 | 609 | 1200 | 20-M30 | 530 | 410 | |
600 | 154 | 840 | 770 | 720 | 1450 | 20-M36 | 600 | 550 | |
700 | 165 | 910 | 840 | 788 | 1700 | 24-M36 | 600 | 820 | |
800 | 190 | 1025 | 950 | 898 | 2000 | 24-M36 | 680 | 950 | |
900 | 203 | 1125 | 1050 | 998 | 2300 | 28-M36 | 680 | 1020 | |
1000 | 216 | 1255 | 1170 | 1110 | 2500 | 28-M42 | 700 | 1120 | |
1200 | 254 | 1485 | 1390 | 1325 | 2800 | 32-M48 | 800 | 1480 |
良好的品質、優良的服務 奇高為你創造更多價值!
“奇高閥門”的期望,不斷提升服務質量,精益求精,“真誠的服務”是“奇高”永恒的主題。“奇高”嚴格按照IS09001-2000 質量體系認證要求,質量嚴格把關, 責任到人,確保生產、銷售、服務的健康運行。加強與用戶溝通,竭誠為廣大客戶提供優良產品,貼心服務。特此我廠做出以下承諾:
產品標準:
產品嚴格按照中國GB、HG 標準和美國API等標準設計、制造、驗收。密封面硬度達到國家規定要求,寬度超過國家標準。
售前服務:
產品介紹,技術交流,非標產品設計,疑難解答。
售中服務:
守信合同,及時供貨,隨時保持與客戶聯系。 對特殊或復制的產品,我廠安排技術人員對用戶進行產品使用、故障排除
售后服務:
1、“奇高”牌產品品質期為自出廠起12個月,實行“三包”服務(包退、包換、保修)。
2、產品在使用中我廠定期組織技術、質檢人員進行訪問,征詢用戶對產品質量、 使用狀況、改進意見等方面的反饋, 以便進一步提高產品質量。
3、對用戶投訴質量問題,快速作出反應,售后服務人員在24-36小時(省外48小時)趕赴現場。
4、對售后服務,要求用戶填寫服務后的質量反饋信息表,并作出鑒定意見,以便提高奇高的服務質量。
1、客戶如對產品有特殊要求,須在訂貨合同中提供以下說明:
a、結構長度;
b、連接形式;
c、公稱直徑、全通徑、縮徑、管道尺寸;
d、運行介質及溫度、壓力范圍;
e、試驗、檢驗標準及其他要求
2、本廠可根據客戶特定要求配置各類驅動裝置。
3、如由客戶提供確定的閥門類型和型號時,客戶應正確說明其型號的含義和要求,在供需雙方理解一致的條件下簽訂合同。
4、期貨、訂貨的客戶請先來電函詳細告訴所需的閥門型號、規格、數量以及交貨時間、地點,并按總的30%預定金或全額貨款及時匯入我廠帳戶,其余貨款待發貨前匯入,以便及時安排發貨。
訂單流程:
1、客戶采購清單傳真至021-33872143,或來電咨詢 021-33872141
2、收到客戶采購清單,為客戶提供閥門型號選型與報價(價格清單)。
3、具體商定:交貨期、特殊要求等事宜。
訂貨須知:
1、客戶如對產品有特殊要求,須在訂貨合同中提供以下說明:
|
|||||
|
|||||
2、本廠可根據客戶特定要求配置各類驅動裝置。
|
|||||
3、如由客戶提供確定的閥門類型和型號時,客戶應正確說明其型號的含義和要求,在供需雙方理解一致的條件下簽訂合同。
|
|||||
4、期貨、訂貨的客戶請先來電函詳細告訴所需的閥門型號、規格、數量以及交貨時間、地點,并按總的30%預定金或全額貨款及時匯入我廠賬戶, 其余貨款待發貨前匯入,以便及時安排發貨。
|
售中服務:
守信合同,及時供貨,隨時保持與客戶聯系。
對特殊或復制的產品,我廠安排技術人員對用戶進行產品使用、故障排除
售后服務:
1、“奇高”產品品質期為自出廠起12個月,實行“三包”服務(包退、包換、保修)。
2、產品在使用中我廠定期組織技術、質檢人員進行訪問,征詢用戶對產品質量、使用狀況、改進意見等方面的反饋,
以便進一步提高產品質量。
3、對用戶投訴質量問題,快速作出反應,售后服務人員在24-36小時(省外48小時)趕赴現場。
4、對售后服務,要求用戶填寫服務后的質量反饋信息表,并作出鑒定意見,以便提高“奇高”的服務質量。
聲明 |
|