自力電控溫度調節閥-ZZWPE
- 銷售:021-32051999
- 銷售:021-32050777
- 傳真:021-66099555
詳情介紹
- 產品介紹
- 服務承諾
- 訂貨流程
ZZWPE自力式電控溫度調節閥(適用于較大口徑及導熱油控制),該閥大的特點只需普通220V電源,利用被調介質自身能量,直接對蒸汽、熱水、熱油與氣體等介質的溫度實行自動調節和控制,亦可使用在防止對過熱或熱交換場合,該閥結構簡單,操作方便,選用調溫范圍廣、響應時間快、密封性能可靠,并可在運行中隨意進行調節,因而廣泛應用于化工、石油、食品、輕紡、賓館與飯店等部門的熱水供應。
自力電控溫度調節閥 結構原理
調節閥由主閥、智能執行器與傳感器三部分組成,根據用戶需要,分別有加熱型與冷卻型兩種結構。
1.加熱型調節閥的結構與原理,見附圖示:
工作前主閥芯處于半開位置,傳感器處于自然狀態。接上電源,主閥芯全開。介質由箭頭方向流入主閥體、經閥芯對儲熱箱進行加熱。當溫度升到相應設定值時,傳感器即產生相應線性信號輸入智能執行機構,隨即驅動閥桿、閥芯產生位移,關閉主閥芯停止加熱。當溫度低于設定值時,傳感器即產生線性信號輸入執行機構,驅使閥芯漸開,使介質按拋物線特性流入儲熱箱,進行加熱直到設定值。這樣被控介質始終在設定溫度范圍內被控制,從而達到控溫目的。

(1)智能型執行器
(2)主閥體
(3)傳感器
(4)毛細管
(5)手動機構
備注:常說的加熱型、冷卻型。在此閥中只要更換閥芯結構即可以實現。
自力電控溫度調節閥 主要技術參數
公稱通徑 (mm) | 15 | 20 | 25 | 32 | 40 | 50 | 65 | 80 | 100 | 125 | 150 | 200 | |
公稱壓力 PN(MPa) | 1.6 4.0 | ||||||||||||
流量能力 (m 3 /h) | 5 | 7 | 10 | 16 | 25 | 40 | 63 | 100 | 160 | 250 | 400 | 630 | |
額定行程 (mm) | 6 | 8 | 10 | 14 | 20 | 30 | 30 | 40 | |||||
溫度調節范圍 ( ℃ ) | 0~120 : 100~250 | ||||||||||||
調節精度 ( ℃ ) | ± 1 ~ ± 5 | ||||||||||||
使用介質 | 蒸汽、水、油、氣體 | ||||||||||||
允許 | 硬密封 | 10 -4 X 閥額定容量 | |||||||||||
軟密封 | “ 0 ” | ||||||||||||
毛細管長度 | 3m 、 5m 、 10m | ||||||||||||
溫包扦入深度 | 270 、 430 、 630 | ||||||||||||
聯接螺紋 | 3/4 ” 1 ” | ||||||||||||
自力電控溫度調節閥 執行機構
公稱通徑 DN ( mm ) | 20 | 25 | 32 | 40 | 50 | 65 | 80 | 100 | 125 | 150 | 200 | |
電動執行機構型號 | 普通型 | ZAZ-60 | ZAZ-60 | DKZ-410 | DKZ-410 | |||||||
電子型 | JHZAZ1 | JHZAZ2 | JHZAZ3 | JHZAZ3 | ||||||||
電動執行機構推力( N ) | 普通型 | 400 | 400 | 6400 | 6400 | |||||||
電子型 | 2000 | 4000 | 6000 | 8000 | ||||||||
全行程 | 普通型 | 12.5 | 20 | 32 | 48 | |||||||
電子型 | 30 | 30 | 48 | 60 | ||||||||
消耗功率( W ) | 普通型 | 28 | 35 | |||||||||
電子型 | 6 | 15 | 25 | 40 | ||||||||
*表中數據僅為常規配置,具體選用根據主要參數及用戶要求而定。
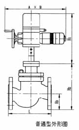
自力電控溫度調節閥 主要外形尺寸

普通型 單位:mm
公稱通徑 DN | 20 | 25 | 32 | 40 | 50 | 65 | 80 | 100 | 125 | 150 | 200 | |
A | 460 | 530 | 630 | |||||||||
B | 230 | 230 | 260 | |||||||||
H 1 | 490 | 540 | 625 | |||||||||
L | 150 | 160 | 180 | 200 | 230 | 290 | 310 | 350 | 400 | 480 | 600 | |
H 2 | 175 | 180 | 215 | 218 | 230 | 280 | 285 | 315 | 400 | 460 | 540 | |
H 3 | 53 | 57.5 | 70 | 75 | 82.5 | 92.5 | 100 | 110 | 125 | 142.5 | 170 | |
重量 (Kg) | PN 16 40 | 50 | 52 | 54 | 56 | 58 | 75 | 87 | 95 | 132 | 135 | 155 |
PN64 | 53 | 56 | 58 | 65 | 68 | 84 | 110 | 129 | 177 | 180 | 210 | |

電子型 單位:mm
公稱通徑 DN | 20 | 25 | 32 | 40 | 50 | 65 | 80 | 100 | 125 | 150 | 200 | |
d | φ 155 | φ 162 | φ 170 | |||||||||
H 4 | 290 | 325 | 380 | |||||||||
L | 150 | 160 | 180 | 200 | 230 | 290 | 310 | 350 | 400 | 480 | 600 | |
H 5 | 175 | 180 | 215 | 218 | 230 | 280 | 285 | 315 | 400 | 460 | 540 | |
H 6 | 53 | 58 | 70 | 75 | 82 | 92 | 100 | 110 | 125 | 142 | 170 | |
重量 (Kg) | PN 16 40 | 10 | 12 | 15 | 17 | 18 | 34 | 46 | 54 | 76 | 79 | 100 |
PN64 | 13 | 16 | 19 | 26 | 27 | 43 | 69 | 85 | 120 | 125 | 150 | |
良好的品質、優良的服務 奇高為你創造更多價值!
“奇高閥門”的期望,不斷提升服務質量,精益求精,“真誠的服務”是“奇高”永恒的主題。“奇高”嚴格按照IS09001-2000 質量體系認證要求,質量嚴格把關, 責任到人,確保生產、銷售、服務的健康運行。加強與用戶溝通,竭誠為廣大客戶提供優良產品,貼心服務。特此我廠做出以下承諾:
產品標準:
產品嚴格按照中國GB、HG 標準和美國API等標準設計、制造、驗收。密封面硬度達到國家規定要求,寬度超過國家標準。
售前服務:
產品介紹,技術交流,非標產品設計,疑難解答。
售中服務:
守信合同,及時供貨,隨時保持與客戶聯系。 對特殊或復制的產品,我廠安排技術人員對用戶進行產品使用、故障排除
售后服務:
1、“奇高”牌產品品質期為自出廠起12個月,實行“三包”服務(包退、包換、保修)。
2、產品在使用中我廠定期組織技術、質檢人員進行訪問,征詢用戶對產品質量、 使用狀況、改進意見等方面的反饋, 以便進一步提高產品質量。
3、對用戶投訴質量問題,快速作出反應,售后服務人員在24-36小時(省外48小時)趕赴現場。
4、對售后服務,要求用戶填寫服務后的質量反饋信息表,并作出鑒定意見,以便提高奇高的服務質量。
1、客戶如對產品有特殊要求,須在訂貨合同中提供以下說明:
a、結構長度;
b、連接形式;
c、公稱直徑、全通徑、縮徑、管道尺寸;
d、運行介質及溫度、壓力范圍;
e、試驗、檢驗標準及其他要求
2、本廠可根據客戶特定要求配置各類驅動裝置。
3、如由客戶提供確定的閥門類型和型號時,客戶應正確說明其型號的含義和要求,在供需雙方理解一致的條件下簽訂合同。
4、期貨、訂貨的客戶請先來電函詳細告訴所需的閥門型號、規格、數量以及交貨時間、地點,并按總的30%預定金或全額貨款及時匯入我廠帳戶,其余貨款待發貨前匯入,以便及時安排發貨。
訂單流程:
1、客戶采購清單傳真至021-33872143,或來電咨詢 021-33872141
2、收到客戶采購清單,為客戶提供閥門型號選型與報價(價格清單)。
3、具體商定:交貨期、特殊要求等事宜。
訂貨須知:
1、客戶如對產品有特殊要求,須在訂貨合同中提供以下說明:
|
|||||
|
|||||
2、本廠可根據客戶特定要求配置各類驅動裝置。
|
|||||
3、如由客戶提供確定的閥門類型和型號時,客戶應正確說明其型號的含義和要求,在供需雙方理解一致的條件下簽訂合同。
|
|||||
4、期貨、訂貨的客戶請先來電函詳細告訴所需的閥門型號、規格、數量以及交貨時間、地點,并按總的30%預定金或全額貨款及時匯入我廠賬戶, 其余貨款待發貨前匯入,以便及時安排發貨。
|
售中服務:
守信合同,及時供貨,隨時保持與客戶聯系。
對特殊或復制的產品,我廠安排技術人員對用戶進行產品使用、故障排除
售后服務:
1、“奇高”產品品質期為自出廠起12個月,實行“三包”服務(包退、包換、保修)。
2、產品在使用中我廠定期組織技術、質檢人員進行訪問,征詢用戶對產品質量、使用狀況、改進意見等方面的反饋,
以便進一步提高產品質量。
3、對用戶投訴質量問題,快速作出反應,售后服務人員在24-36小時(省外48小時)趕赴現場。
4、對售后服務,要求用戶填寫服務后的質量反饋信息表,并作出鑒定意見,以便提高“奇高”的服務質量。
聲明 |
|