陶瓷閘閥
- 銷售:021-32051999
- 銷售:021-32050777
- 傳真:021-66099555
詳情介紹
- 產品介紹
- 服務承諾
- 訂貨流程
Z643TC氣動單閘板陶瓷閘閥/ Z644TC氣動雙閘板陶瓷閘閥用于電廠干灰系統倉泵進料閥,可用于高硬度的顆粒介質,也可用于礦山、造紙、化工等各類有磨損的干粉塵、水蒸氣的官道上作啟閉之用。公稱壓力1.0MPa,適應溫度≤150℃。
密封面采用硬密封與介質接觸的部分均為結構陶瓷材料,其化學穩定性及硬度高,使用壽命是普通材料閥門的510倍。因此具有高的耐磨損、耐腐蝕、耐沖蝕性能,且隔熱性好、熱膨脹小,所以本閥為用戶帶來高的經濟利益。
本閥料口全流通無阻擋物,有壓縮空氣自動吹堵裝置,卡灰、積灰現象少。
本閥采用曾韌結構陶瓷密封,機械強度高耐磨性能好使用壽命長。結構緊湊可任意角度安裝。
![]() | ![]() |
| 單閘板陶瓷閘閥 | 雙閘板陶瓷閘閥 |
陶瓷閘閥 結構特點
1、 以氣缸為驅動裝置,直接推動閘板上下運動,啟閉速度快。
2、 雙閘板間采用浮動連接,在介質壓力作用下形成可靠的單向密封。同時浮動連接可令閘板啟閉時因軸線不同心而旋轉上升,使閘板與閥座間的磨擦紋路均勻分布,不會產生線裝磨損,大大提高使用壽命,
3、 閥體及閘板密封面襯耐磨陶瓷,耐磨性能優良。
4、 體積小,便于運輸,安裝和維護。
陶瓷閘閥 工作原理
當氣缸通過閥桿帶動閘板下行時,閘板與閥體密封面吻合,將通道切斷,即為關閉;反之則為開啟。
陶瓷閘閥 安裝、使用與保養
1、 安裝前應將閥門清洗干凈,并清理在運輸過程中可能造成的缺陷。
2、 核對閥門上的標識及銘牌是否符合使用要求。
3、 本閥閥門可安裝在任意角度的管道上。
4、 本閥門運行時應全開或全關,不能做節流閥使用,否則密封面將被沖刷導致加速磨損。
5、 若長期存放,應存在于干燥通風的室內,定期檢查,防止生銹。
6、 運輸過程中防止磕碰。
陶瓷閘閥 應用規范
單閘板陶瓷閘閥
設計與制造 | JB/T 8691 | |
連接端尺寸 | 結構長度 | 廠商標準 |
法蘭尺寸 | 廠商標準 | |
檢驗與試驗 | GB/T JB/T8691 | |
材料 | 碳鋼 | GB/T 12229 |
標志 | GB/T 12220 | |
供貨 | GB/T 12252 | |
雙閘板陶瓷閘閥
設計與制造 | GB/T 12224 | |
連接端尺寸 | 結構長度 | 廠商標準 |
法蘭尺寸 | JB/T 79.1 | |
檢驗與試驗 | GB/T 9092 | |
材料 | 碳鋼 | GB/T 12229 |
不銹鋼 | GB/T 12230 | |
標志 | GB/T 12220 | |
供貨 | GB/T 12252 | |
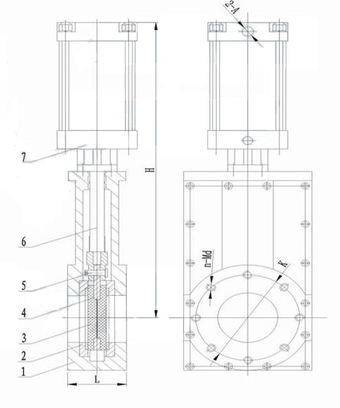
單閘板陶瓷閘閥 主要零件材料
序號 | 名稱 | 材料 | 序號 | 名稱 | 材料 |
1 | 閥體 | WCB | 5 | 銷軸 | GB/T 882 |
2 | 閥座 | A 105+工程陶瓷 | 6 | 閥桿 | Q235+鍍鉻 |
3 | 閥板 | 合金鋼+工程陶瓷 | 7 | 氣動裝置 |

單閘板陶瓷閘閥 主要外形尺寸
DN | PN(10kg) | L | K | H | n-Md | 氣缸進氣孔2-A |
50 | 10 | 100 | 125 | 320 | 4-M16 | 2-G1/4 |
65 | 100 | 145 | 345 | 4-M16 | 2-G1/4 | |
80 | 100 | 160 | 380 | 8-M16 | 2-G1/4 | |
100 | 100 | 180 | 440 | 8-M16 | 2-G1/4 | |
125 | 100 | 210 | 465 | 8-M16 | 2-G1/4 | |
150 | 100 | 240 | 620 | 8-M20 | 2-G1/4 | |
200 | 100 | 295 | 650 | 8-M20 | 2-G1/4 |
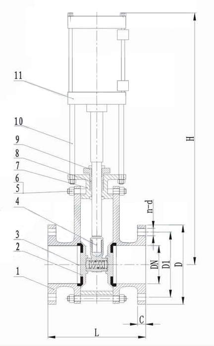
雙閘板陶瓷閘閥 主要零件材料
序號 | 名稱 | 材料 | 序號 | 名稱 | 材料 |
1 | 閥體 | WCB | 7 | 中閥體 | WCB |
2 | 閥板 | 復合工程陶瓷 | 8 | 填料 | 柔性石墨 |
3 | 閥座 | 復合工程陶瓷 | 9 | 填料壓蓋 | 2Cr13 |
4 | 閥桿 | 2Cr13 | 10 | 支架 | Q235 |
5 | 雙頭螺栓 | 35CrMoVA | 11 | 氣動裝置 | |
6 | 螺母 | 25 | |||

雙閘板陶瓷閘閥 主要外形尺寸
DN | PN(10kg) | L | D | D1 | C | H | n-d |
50 | 10 | 200 | 160 | 125 | 16 | 520 | 4-φ18 |
65 | 220 | 180 | 145 | 18 | 595 | 4-φ18 | |
80 | 240 | 195 | 160 | 20 | 635 | 8-φ18 | |
100 | 280 | 215 | 180 | 20 | 630 | 8-φ18 | |
125 | 300 | 245 | 210 | 22 | 715 | 8-φ18 | |
150 | 320 | 280 | 240 | 24 | 840 | 8-φ23 | |
175 | 320 | 310 | 270 | 26 | 885 | 8-φ23 | |
200 | 350 | 335 | 295 | 26 | 1155 | 8-φ23 | |
250 | 400 | 405 | 350 | 30 | 1400 | 8-φ23 | |
300 | 450 | 460 | 400 | 30 | 1800 | 12-φ23 |
良好的品質、優良的服務 奇高為你創造更多價值!
“奇高閥門”的期望,不斷提升服務質量,精益求精,“真誠的服務”是“奇高”永恒的主題。“奇高”嚴格按照IS09001-2000 質量體系認證要求,質量嚴格把關, 責任到人,確保生產、銷售、服務的健康運行。加強與用戶溝通,竭誠為廣大客戶提供優良產品,貼心服務。特此我廠做出以下承諾:
產品標準:
產品嚴格按照中國GB、HG 標準和美國API等標準設計、制造、驗收。密封面硬度達到國家規定要求,寬度超過國家標準。
售前服務:
產品介紹,技術交流,非標產品設計,疑難解答。
售中服務:
守信合同,及時供貨,隨時保持與客戶聯系。 對特殊或復制的產品,我廠安排技術人員對用戶進行產品使用、故障排除
售后服務:
1、“奇高”牌產品品質期為自出廠起12個月,實行“三包”服務(包退、包換、保修)。
2、產品在使用中我廠定期組織技術、質檢人員進行訪問,征詢用戶對產品質量、 使用狀況、改進意見等方面的反饋, 以便進一步提高產品質量。
3、對用戶投訴質量問題,快速作出反應,售后服務人員在24-36小時(省外48小時)趕赴現場。
4、對售后服務,要求用戶填寫服務后的質量反饋信息表,并作出鑒定意見,以便提高奇高的服務質量。
1、客戶如對產品有特殊要求,須在訂貨合同中提供以下說明:
a、結構長度;
b、連接形式;
c、公稱直徑、全通徑、縮徑、管道尺寸;
d、運行介質及溫度、壓力范圍;
e、試驗、檢驗標準及其他要求
2、本廠可根據客戶特定要求配置各類驅動裝置。
3、如由客戶提供確定的閥門類型和型號時,客戶應正確說明其型號的含義和要求,在供需雙方理解一致的條件下簽訂合同。
4、期貨、訂貨的客戶請先來電函詳細告訴所需的閥門型號、規格、數量以及交貨時間、地點,并按總的30%預定金或全額貨款及時匯入我廠帳戶,其余貨款待發貨前匯入,以便及時安排發貨。
訂單流程:
1、客戶采購清單傳真至021-33872143,或來電咨詢 021-33872141
2、收到客戶采購清單,為客戶提供閥門型號選型與報價(價格清單)。
3、具體商定:交貨期、特殊要求等事宜。
訂貨須知:
1、客戶如對產品有特殊要求,須在訂貨合同中提供以下說明:
|
|||||
|
|||||
2、本廠可根據客戶特定要求配置各類驅動裝置。
|
|||||
3、如由客戶提供確定的閥門類型和型號時,客戶應正確說明其型號的含義和要求,在供需雙方理解一致的條件下簽訂合同。
|
|||||
4、期貨、訂貨的客戶請先來電函詳細告訴所需的閥門型號、規格、數量以及交貨時間、地點,并按總的30%預定金或全額貨款及時匯入我廠賬戶, 其余貨款待發貨前匯入,以便及時安排發貨。
|
售中服務:
守信合同,及時供貨,隨時保持與客戶聯系。
對特殊或復制的產品,我廠安排技術人員對用戶進行產品使用、故障排除
售后服務:
1、“奇高”產品品質期為自出廠起12個月,實行“三包”服務(包退、包換、保修)。
2、產品在使用中我廠定期組織技術、質檢人員進行訪問,征詢用戶對產品質量、使用狀況、改進意見等方面的反饋,
以便進一步提高產品質量。
3、對用戶投訴質量問題,快速作出反應,售后服務人員在24-36小時(省外48小時)趕赴現場。
4、對售后服務,要求用戶填寫服務后的質量反饋信息表,并作出鑒定意見,以便提高“奇高”的服務質量。
聲明 |
|

